projects
furniture
profile
contact
blog
regina loft
montreal kitchen renovation
montreal garden
north vancouver addition
east vancouver bathroom
deep cove storage
west vancouver kitchen
lynn valley renovation
images
description
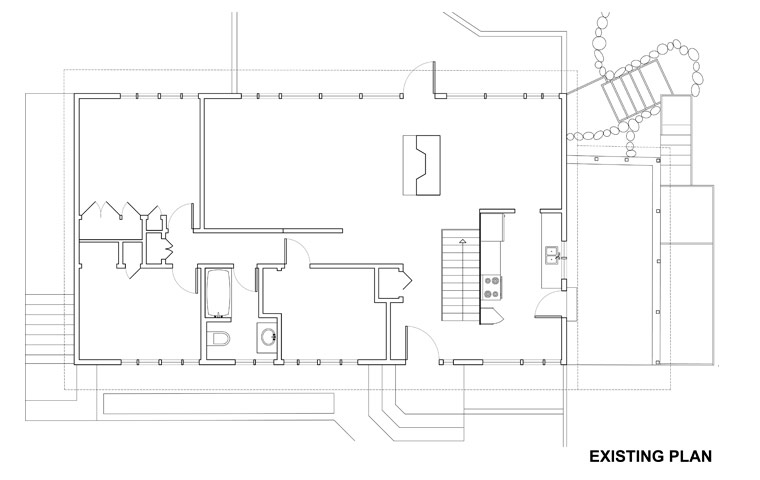
drawings
1 / 3