Liana Sipelis Architect
  • projects
  • furniture
  • profile
  • contact
  • blog

  • regina loft
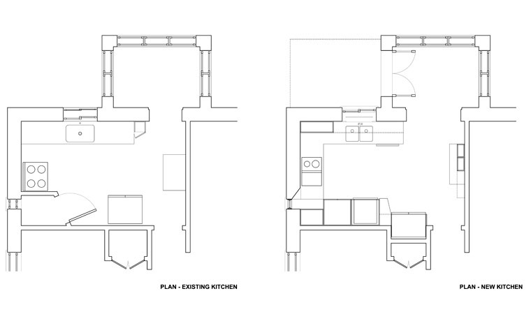
  • montreal kitchen renovation
  • montreal garden
  • north vancouver addition
  • east vancouver bathroom
  • deep cove storage
  • west vancouver kitchen
  • lynn valley renovation

  • images
  • description
  • drawings